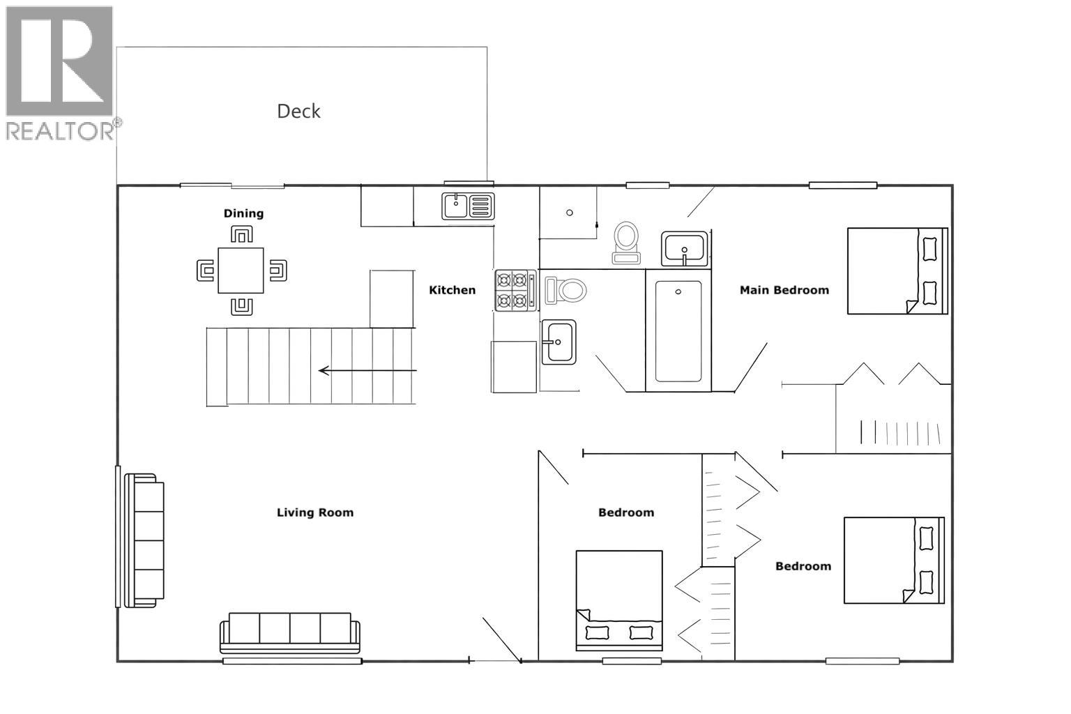
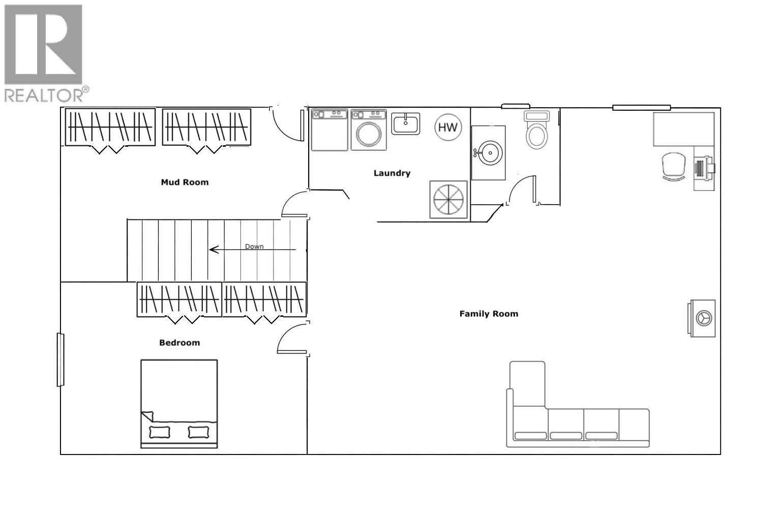
Spacious 2 level home with walkout basement overlooking the Tulameen River. Situated on a spacious lot with ample room for RV parking and additional vehicles, this property offers both a family friendly home with outdoor water lifestyle appeal. Numerous updates have been completed over the years, including windows, gas furnace, appliances, flooring, kitchen, and bathrooms, providing peace of mind. Featuring a 3 bedroom layout upstairs, with the primary bedroom offering modern amenities including a walk-in closet and 3-piece ensuite. Step outside to the large rear sun deck and enjoy beautiful river views and sounds in your own backyard. The full walk-out basement offers plenty of additional space and potential for the growing family. Conveniently located near elementary school. An amazing home that's perfect for families. (id:4069)
Address
446 Corina Avenue
List Price
$549,000
Property Type
Single Family
Type of Dwelling
Single Family
Style of Home
Ranch
Transaction Type
Sale
Area
British Columbia
Sub-Area
Princeton
Bedrooms
4
Bathrooms
3
Floor Area
2,144 Sq. Ft.
Lot Size
0.19 Sq. Ft.
Year Built
1980
MLS® Number
10376508
Listing Brokerage
Century 21 Horizon West Realty
Basement Area
Full
Postal Code
V0X1W0
Site Influences
Schools, View











































